For Sale 70,000 - Land
Land for Sale with Approved Planning Permit — Loreto Aprutino, Abruzzo, Italy
Located in the municipality of Loreto Aprutino, in the province of Pescara, this 7,900 sqm residential building plot is offered for private sale, inclusive of a fully approved planning permit ready for immediate construction.
The land sits on a south-facing hillside at a commanding elevation, surrounded by a centuries-old olive grove. The exposure ensures maximum natural light throughout the day and passive solar gain — a significant advantage for the timber construction project attached to the sale. From the plot, unobstructed views extend across to the Majella National Park to the west and the Adriatic coastline to the east, making this one of the most panoramically privileged positions in the area.
The Approved Project, if interested for any inquieres I’ll be sharing videos of the land and the villa shot via drone, contains:
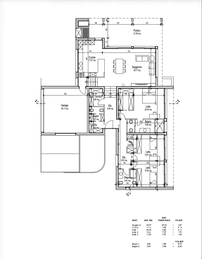
The planning permit, already granted by the local municipality, covers the construction of a timber-frame residential villa with the following specifications:
Main living area: 184 sqm
Attached garage: 35 sqm
Covered veranda (porticato): 20 sqm
The timber-frame construction method offers significant structural and energetic advantages: high thermal and acoustic insulation, low environmental impact, rapid build times compared to traditional masonry, and full compliance with current Italian seismic and energy efficiency regulations. Abruzzo’s building tradition and the local climate make this construction typology particularly well suited to the site.
Location & Connectivity
Loreto Aprutino is a well-preserved medieval village consistently ranked among Italy’s most beautiful borghi. The plot is located less than 5 minutes by car from the village centre, which provides all essential services including shops, restaurants, schools, medical facilities and public transport connections.
Key distances:
Loreto Aprutino village centre: 5 minutes
Adriatic Sea: 15 minutes
Pescara International Airport: 20 minutes
Pescara city centre: 25 minutes
Gran Sasso / ski slopes: 40 minutes
Rome (A24 motorway): approximately 2 hours
Sale Conditions
Asking price: €70,000
Bucalossi development levy: payable by the buyer (amount confirmed by the municipality of Loreto Aprutino)
Agency fees: none — private sale
Planning status: permit approved, no delays, construction-ready
Contact
Email: delellispaolocsl@gmail.com
Phone (calls): +39 379 287 8155
WhatsApp: +39 327 291 8720
Features
- Air Conditioning
- Air Conditioning Hot/cold
- Beach
- Beach distance: 14 km
- Beach Homes
- Carport
- ceilings with exposed wooden beams
- Central Heating
- covered terrace of 26 sq.m.
- detached large garage
- Energy Certificate: A
- Energy Certificate: free
- Energy Rating A
- Fire Place
- Fireplace
- Fitted Kitchen
- Garden/backyard
- Independent heating system
- Land
- Land is 7500 m²
- Lounge With Fireplace
- Mountain view
- New Construction
- Overlooking The Sea
- Panoramic
- Park view
- Porch
- Private Parking
- Private Patio/ Garden
- Regulated Plot of land
- Rural Properties
- sea view
- Secure Parking
- shelter for the car
- Terrace
- terraces
- The entire property is surrounded by a park of over 5500 sq.m
- Water
- Wifi






